Zárubeň CGH MW - hranatá do ytongu 75 mm
Zárubeň CGH MW určená k zabudování do ytongu.
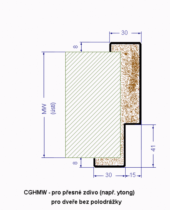
                obrázky mohou být ilustrační
                                            
            
            
        Varianty
                    Kód výrobku
                    200200235
                
                VýrobceiMiroslav Růčka
            Firma Miroslav Růčka je rodinnou firmou, která se od svého založení v roce 1992 zabývá především kovovýrobou. Od roku 1993 se stala hlavní náplní výroba ocelových zárubní v široké paletě a typů provedení, protipožárních i bezpečnostních. Růčka s.r.o., Dolní Bečva 627, 756 55, IČ: 07630841, DIČ: CZ07630841, rucka@rucka.com
Parametry produktu:
Váha
20 kg
                    Cena s DPH za ks:
Cena bez DPH za ks:
                Cena bez DPH za ks:
                
                    890 Kč
736 Kč
                
                             736 Kč
Popis Zárubeň CGH MW - hranatá do ytongu 75x1970x800 mm levá
Zárubně typu CGHMW jsou určené k zazdívání do přesného zdiva (např. ytong). Uplatnění najdou také při usazování do hrubých stavebních otvorů (např. zapěněním nebo zalitím).
Zárubně se standardně dodávají s třemi pevnými (přivařenými) závěsy typu OZ 30, podlahovým zapuštěním 30 mm a základním přepravním nátěrem červenohnědého odstínu.
Vlastnosti Zárubeň CGH MW - hranatá do ytongu 75x1970x800 mm levá
- Požární odolnost: EI(EW) 30.
 - CGH označuje tvar profilu(hranatý).
 - MW označuje, že se jedná o zárubně do přesného zdiva
 - Průchozí výška: 1970 mm.
 - Průchozí šířka: 600,700,800,900,1000,1100,1250,1450,1600 mm.
 - Tloušťka: 75 mm.
 
Soubory ke stažení
 









