Zárubeň CGH MW - hranatá do ytongu 125 mm
Zárubeň CGH MW určená k zabudování do ytongu.
obrázky mohou být ilustrační
Varianty
Kód výrobku
200200292
VýrobceiMiroslav Růčka
Firma Miroslav Růčka je rodinnou firmou, která se od svého založení v roce 1992 zabývá především kovovýrobou. Od roku 1993 se stala hlavní náplní výroba ocelových zárubní v široké paletě a typů provedení, protipožárních i bezpečnostních. Růčka s.r.o., Dolní Bečva 627, 756 55, IČ: 07630841, DIČ: CZ07630841, rucka@rucka.com
Parametry produktu:
Váha
20 kg
Cena s DPH za ks:
Cena bez DPH za ks:
Cena bez DPH za ks:
1 309 Kč
1 082 Kč
1 082 Kč
Popis Zárubeň CGH MW - hranatá do ytongu 125x1970x600 mm pravá
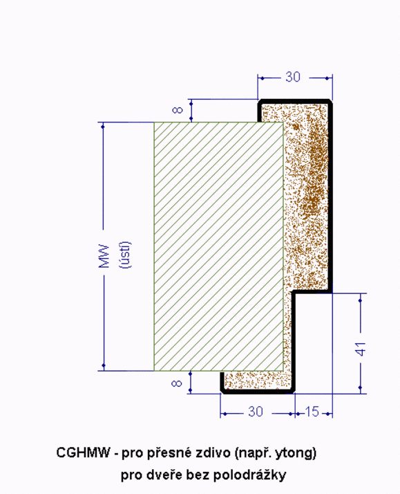
Zárubně typu CGHMW jsou určené k zazdívání do přesného zdiva (např. ytong). Uplatnění najdou také při usazování do hrubých stavebních otvorů (např. zapěněním nebo zalitím).
Zárubně se standardně dodávají s třemi pevnými (přivařenými) závěsy typu OZ 30, podlahovým zapuštěním 30 mm a základním přepravním nátěrem červenohnědého odstínu.
Vlastnosti Zárubeň CGH MW - hranatá do ytongu 125x1970x600 mm pravá
- Požární odolnost: EI(EW) 30.
- CGH označuje tvar profilu(hranatý).
- MW označuje, že se jedná o zárubně do přesného zdiva
- Průchozí výška: 1970 mm.
- Průchozí šířka: 600,700,800,900,1000,1100,1250,1450,1600 mm.
- Tloušťka: 125 mm.
Soubory ke stažení
Virtuální prohlídka dveře Stavebniny Janík
Cena98 Kč
Cena s DPH119 Kč
skladem 778
ks









