Zárubeň CGH MW - hranatá do ytongu 100 mm
Zárubeň CGH MW určená k zabudování do ytongu.
obrázky mohou být ilustrační
Varianty
Kód výrobku
VýrobceiMiroslav Růčka
Firma Miroslav Růčka je rodinnou firmou, která se od svého založení v roce 1992 zabývá především kovovýrobou. Od roku 1993 se stala hlavní náplní výroba ocelových zárubní v široké paletě a typů provedení, protipožárních i bezpečnostních. Růčka s.r.o., Dolní Bečva 627, 756 55, IČ: 07630841, DIČ: CZ07630841, rucka@rucka.com
Cena s DPH za ks:
Cena bez DPH za ks:
Cena bez DPH za ks:
926 Kč
765 Kč
765 Kč
Popis Zárubeň CGH MW - hranatá do ytongu 100 mm
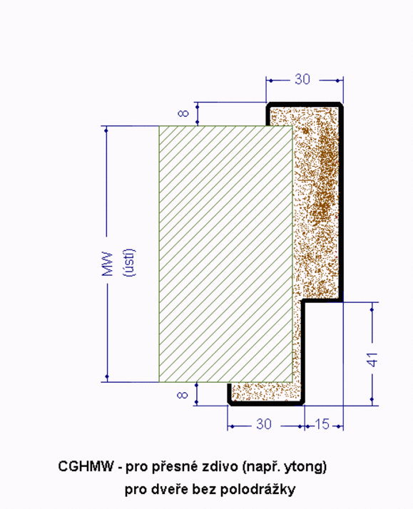
Zárubně typu CGHMW jsou určené k zazdívání do přesného zdiva (např. ytong). Uplatnění najdou také při usazování do hrubých stavebních otvorů (např. zapěněním nebo zalitím).
Zárubně se standardně dodávají s třemi pevnými (přivařenými) závěsy typu OZ 30, podlahovým zapuštěním 30 mm a základním přepravním nátěrem červenohnědého odstínu.
Vlastnosti Zárubeň CGH MW - hranatá do ytongu 100 mm
- Požární odolnost: EI(EW) 30.
- CGH označuje tvar profilu(hranatý).
- MW označuje, že se jedná o zárubně do přesného zdiva
- Průchozí výška: 1970 mm.
- Průchozí šířka: 600,700,800,900,1000,1100,1250,1450,1600 mm.
- Tloušťka: 100 mm.
Soubory ke stažení
Virtuální prohlídka dveře Stavebniny Janík
Cena2 892 Kč
Cena s DPH3 499 Kč
skladem 8
ks
Cena3 926 Kč
Cena s DPH4 750 Kč
skladem 10
ks
Cena3 926 Kč
Cena s DPH4 750 Kč
skladem 3
ks








