Zárubeň CGH - hranatá do cihlového zdiva 160 mm
Zárubně typu CGH určené k zazdívání do klasického zdiva.
Varianty
Firma Miroslav Růčka je rodinnou firmou, která se od svého založení v roce 1992 zabývá především kovovýrobou. Od roku 1993 se stala hlavní náplní výroba ocelových zárubní v široké paletě a typů provedení, protipožárních i bezpečnostních. Růčka s.r.o., Dolní Bečva 627, 756 55, IČ: 07630841, DIČ: CZ07630841, rucka@rucka.com
Cena bez DPH za ks:
944 Kč
Popis Zárubeň CGH - hranatá do cihlového zdiva
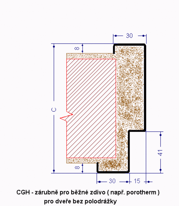
Ocelová zárubeň je vyrobena z plechu tloušťky 1,5 mm, ČSN 7507515 11331.21, konstruována pro dveře s polodrážkou a standardně dodávána s třemi pevnými(přivařenými) závěsy(panty) typu OZ 30, podlahovým zapuštěním 30 mm a v základním přepravním nátěru.
Zárubeň typu CGH je určena k zazdívání do klasického cihlového zdiva, ale uplatnění najde také při usazování do hrubých stavebních otvorů(např. zapěněním nebo zalitím).
Při usazování je nutno dbát důsledně na kolmost usazení - zajistit rovnoběžnost a kolmost obou stojek a nadpraží, vždy rozepřít zárubeň proti prohnutí.
Vlastnosti Zárubeň CGH - hranatá do cihlového zdiva
- Požární odolnost: EI(EW) 30.
- CGH označuje tvar profilu(hranatý).
- Průchozí výška: 1970 mm.
- Průchozí šířka: 600, 700, 800, 900 mm
- Šířka: 160 mm.
Soubory ke stažení









