ACO Sklepní okno bílé vyklápěcí plastové s mřížkou 60 x 40 cm dvojsklo 4+4 mm /F2002/
Plastové okno s dvojsklem.
V českém prostředí je nejznámější skupina ACO, globální lídr v oblasti odvodňovacích technologií a hospodaření s vodou. Výroba odvodňovacích žlabů, vpustí, odlučovačů tuků a ropných látek či sklepních světlíků. V České republice má silné zázemí, zejména výrobní a vývojový závod ACO Přibyslav a pobočku ACO Tábor. ACO Stavební prvky spol. s r.o. Pávov 141, 586 01 Jihlava aco@aco.cz
Cena bez DPH za ks:
1 899 Kč
Popis ACO Sklepní okno bílé vyklápěcí plastové s mřížkou 60 x 40 cm
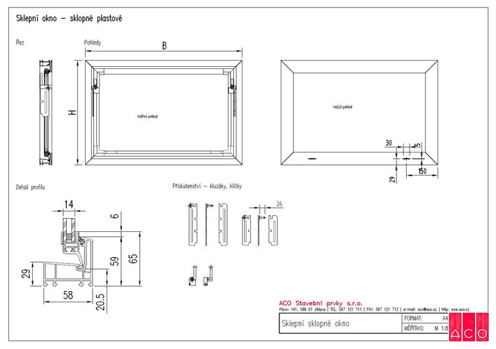
Společnost ACO přináší jednoduché, levné a elegantní řešení právě pro prostory, kde není kladen důraz na dokonalé tepelné vlastnosti, ale především na co největší prosklenou plochu. Plastová sklopná okna ACO jsou standardně dodávána v bílém a hnědém (RAL 8019) provedení s izolačním dvojsklem s koeficientem prostupu tepla Ug = 3,3 W/m2.K.
ACO Produktové výhody:
- 3 komorové PVC profilyStandardní okno - bílé
- Snadná údržba profilů a těsnění
- Vysoká odolnost vůči povětrnostním vlivům – dlouhodobá životnost a funkčnost celého systému
- velká prosklená plocha
- šířka rámu a křídla pouhých 65 mm
- dvě barevná provedení (bílé | hnědé – plně probarvené profily)
- sklopné křídlo lehce vyjmutelné
- žádné kovové součásti – nic nekoroduje – ideální do vlhkého nebo agresivního prostředí
- minimální rozměr již od 470 x 300 mm (šířka x výška)
- velká variabilita díky různým typům zasklení
Sklepní okna ACO se vyznačují izolačnám zasklením 4 x 6 x 4 mm.
Úzké rámy zajišťují co největší možnou plochu skla, což umožňuje co největšímu množsví světla pronikat do místnosti.
Montáž je velmi jednoduchá, není tedy problém okno instalovat bez odborné způsobilosti.
Sklepní okno je vhodné do:
- garáže
- sklepu
- hospodářského stavení
- zemědělského objektu
- zahradního domku
Vlastnosti ACO Sklepní okno bílé vyklápěcí plastové s mřížkou 60 x 40 cm
- celkový rozměr okna včetně rámu je šířka: 60cm x výška:40cm
- rozměr křídla je šířka: 49cm x výška:28,5cm
- pohledová šířka rámu okna je pouze 65mm!
- barva bílá
- okno je sklopné
- křídlo je celé vyjímatelné!
- obvodové těsnění jez materiálů odolných povětrnostním podmínkám
- okno je doplněno o ochranou mřížku proti hlodavcům a zavátí hrubých nečistot
- 3-komorový plastový profil, izolační sklo 4+6+4mm
- součinitel prostupu tepla skla je Ug=3,3W/m2K
- při větrání je okno možné uchytit ve 3 polohách
- dodáváno se 4 kotvami pro snadnou instalaci - možnost okno kotvit i turbošrouby přes rám







